







Apartament 2 camere semidecomandat in Pipera, Zona Matei Millo
Acces facil către birouri Pipera, Lemon Retail Park, Lidl, Alee de promenada langa padure, Autostrada A3
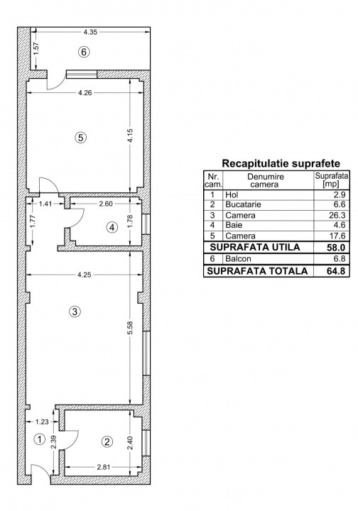
Este compus dintr-un living generos cu zona de dining, dormitor spațios, bucătărie separată, baie cu duș walk-in și balcon cu ieșire din dormitor.
-Suprafata utila: 58 m2 cu balcon generos de 6.8 m
-Numar bai:1
-etaj 2 /3
-Utilitati generale:Apa, Canalizare, CATV, Curent, Gaz
-Bloc izolat termic, construcție din cărămidă (inclusiv pereții interiori)
-Mobilat complet cu Electrocasnice: Aer conditionat, Aragaz, Frigider, Hota, Masina de spalat rufe
-Supraveghere video
-Costuri de întreținere reduse
Locuri de parcare disponibile în curte (se pot achiziționa sau inchiria separat)