Klass Estates utilizează fişiere de tip cookie pentru a personaliza și îmbunătăți experiența ta pe Website-ul nostru. Înainte de a continua navigarea pe Website-ul nostru te rugăm să aloci timpul necesar pentru a citi și înțelege conținutul Politicii de Cookie. Prin continuarea navigării pe Website-ul nostru confirmi acceptarea utilizării fişierelor de tip cookie conform Politicii de Cookie.

Apartament 2 camere | Parcul Circului | bloc nou

ID: P206121

Bucuresti, Parcul Carol

2
177.000€
  • Nr. camere:2
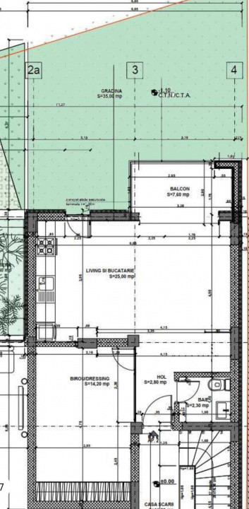
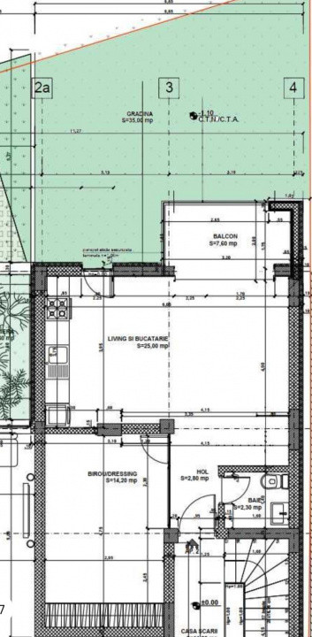
  • S. utila:51.00 mp
  • Comp.:Decomandat
  • Confort:Lux
  • Etaj:Parter
  • Regim inaltime:P+2+M

Klaus Estates va propune spre achizitie un apartament primitor la doar 200 m de Parcul Circului, într-o zonă rezidențială liniștită și selectă, situat la parterul unui imobil boutique cu doar 6 apartamente. Locuința are o suprafață utilă de 51 mp și este completată de o grădină proprie de 35 mp, perfectă pentru relaxare sau pentru a-ți crea propriul colț verde în mijlocul orașului. Interiorul este gândit pentru confort și funcționalitate, oferind un dormitor luminos, un birou ce poate fi transformat în al doilea dormitor, o baie complet utilată și o bucătărie open-space integrată cu zona de living.

Construcția se remarcă prin materiale premium – pereți din cărămidă Porotherm, izolație cu vată bazaltică, tâmplărie Salamander cu geam tripan, încălzire în pardoseală și centrală proprie Ariston de 24 KW cu termostat wireless. Zona este ideală pentru cei care caută liniște și acces rapid către punctele de interes: magazine, școli, restaurante, mijloace de transport, Veranda Mall și Promenada Mall. Finalizarea este programată pentru august 2025, cu posibilitatea personalizării finisajelor.

Alice Nita

0775112795
Vezi telefon Chat