






Klass Estates va propune spre vanzare un apartament spatios cu 2 camere, situat in complexul rezidential Upground Residence, in zona Aviatiei – Pipera, la doar cateva minute de statia de metrou Pipera si de zona de business din nordul Bucurestiului.
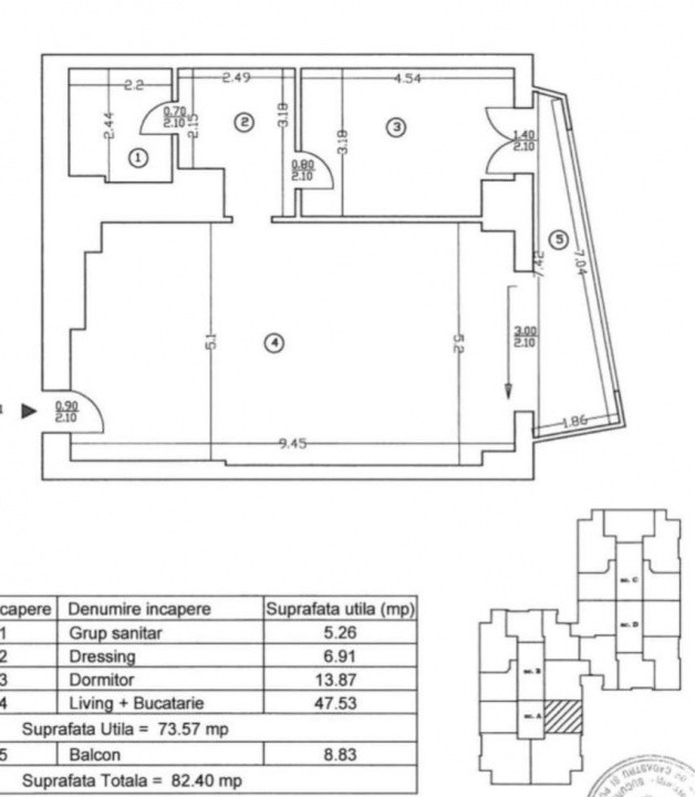
Apartamentul dispune de o suprafata utila totala generoasa de 82 mp, fiind unul dintre cele mai mari tipuri de 2 camere din complex, ideal pentru cei care isi doresc spatiu si confort.
Este situat intr-un imobil modern cu regim de inaltime P+16, la etaj intermediar, si beneficiaza de o compartimentare eficienta.
Compartimentare:
living foarte spatios, cu zona de relaxare si dining
bucatarie open space complet utilata
dormitor matrimonial
zona de dressing separata
baie generoasa
balcon
Apartamentul este complet mobilat si utilat, fiind pregatit pentru mutare imediata, fara investitii suplimentare.
Dotari si beneficii:
aer conditionat
electrocasnice incluse
spatii multiple de depozitare
compartimentare aerisita
suprafata peste media apartamentelor de 2 camere
Complexul Upground Residence ofera:
paza si acces securizat
Mega Image, restaurante, cafenele si servicii in incinta
World Class (fitness, piscina)
comunitate moderna si activa
acces rapid catre Promenada Mall si zona de birouri
Localizare excelenta:
aproximativ 5 minute de metrou Pipera
acces rapid catre Barbu Vacarescu, Floreasca si DN1
apropiere de centre comerciale si business hub-uri
Parcare:
loc de parcare subteran disponibil optional - 20.000 Euro
💼 Investitie excelenta – apartamentele din Upground sunt foarte cautate atat pentru locuire, cat si pentru inchiriere, datorita locatiei si facilitatilor.
Pentru mai multe detalii sau programarea unei vizionari, nu ezitati sa ne contactati.