







Uneori, atunci când intri într-un loc, simți imediat că e „acasă”.
Așa este și acest apartament cu 3 camere din Titan – primitor, luminos și cu o energie caldă, care te face să-ți imaginezi instant momentele petrecute alături de familie.
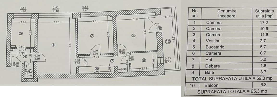
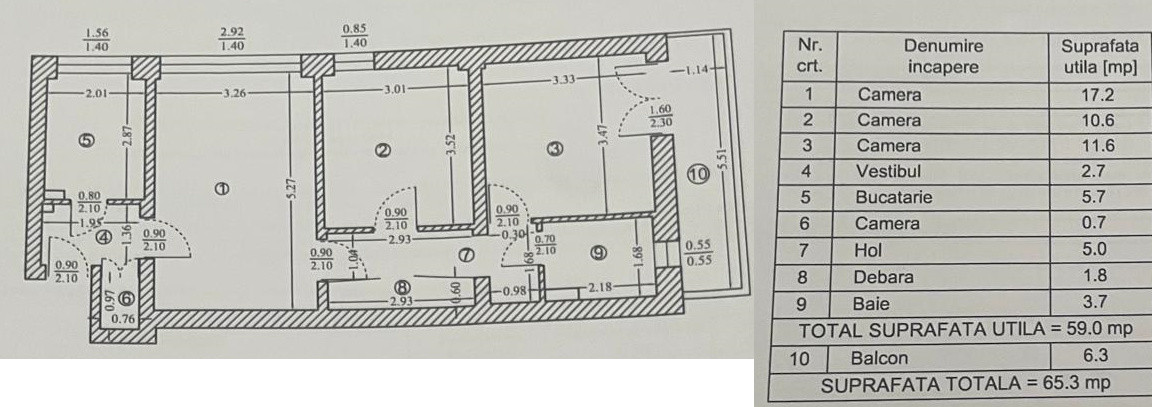
Livingul generos e locul perfect pentru serile petrecute împreună, la un film sau o cină relaxată. Bucătăria spațioasă devine centrul casei, unde se adună mirosuri, zâmbete și povești. Dormitoarele oferă liniște și confort, iar balconul este colțul ideal pentru o cafea dimineața sau pentru a privi apusul după o zi lungă.
📍 Zona: Titan – aproape de Parcul IOR, metrou, școli și magazine
🏢 Etaj: Parter din 10.
📐 Suprafață utilă: 59.0 mp
🛋️ Compartimentare: semidecomandat
🔑 An construcție: 1977
Apartamentul a fost îngrijit cu drag de actualii proprietari și se vinde complet mobilat și utilat (opțional), astfel încât să te poți muta imediat și să începi un nou capitol.
👉 Este potrivit pentru o familie tânără, pentru un cuplu care își dorește mai mult spațiu sau pentru oricine caută un loc care să inspire liniște, echilibru și bucurie.