










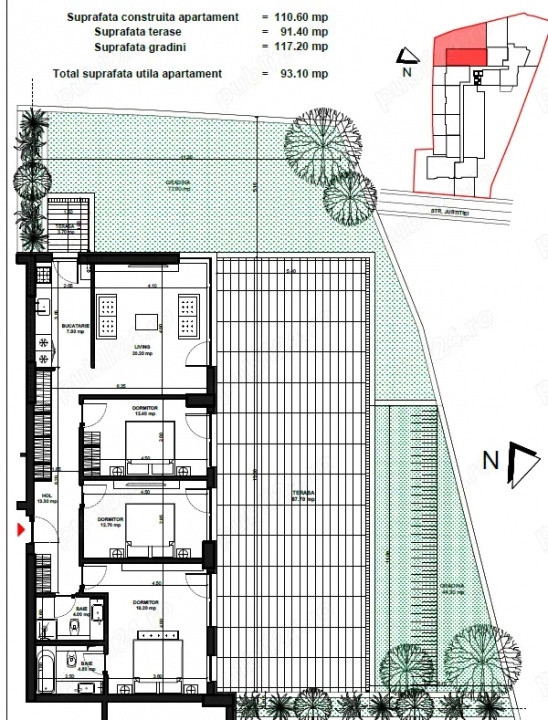
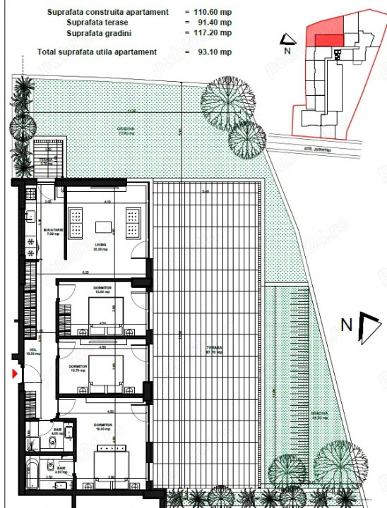
Apartament 4 camere nou, in zona Piata Unirii - Piata Constitutiei, cu terasa pe parter si spatiu verde deja amenajat cu vegetatie.
Este decomandat, nefinisat, cu terasa 91mp. Spatiu verde 117mp, cu 2 bai.
Blocul este dat in folosinta si deja locuit.
In pret este inclus si un loc de parcare in parcarea subterana.
Loc de parcare in fata imobilului cu predarea contractului de la primarie.
Se pot adauga finisajele optional .