







Vă propunem spre închiriere o clădire de birouri clasa A, situată ultracentral, pe strada Apolodor nr. 42, într-o zonă cu vizibilitate excelentă și acces rapid către principalele puncte de interes ale orașului.
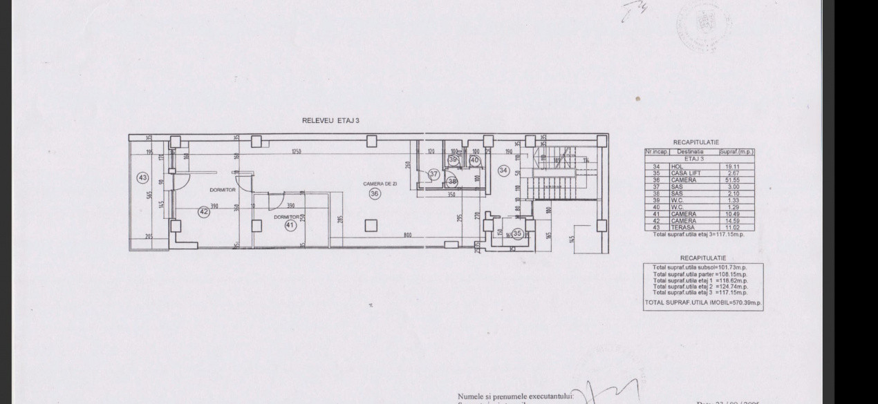
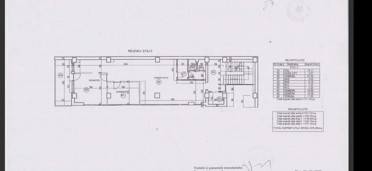
Imobilul, construit în 2005, are regim de înălțime Subsol + Parter + 3 Etaje și o suprafață totală de aproximativ 570 mp, cu aprox. 117 mp pe fiecare nivel. Clădirea este deservită de lift și dispune de o compartimentare flexibilă, potrivită pentru diverse tipuri de activități.
Caracteristici principale:
suprafață totală: ~570 mp
S + P + 3 etaje
aprox. 117 mp / etaj
lift
open space, cu posibilitate de recompartimentare
grup sanitar femei + bărbați pe fiecare etaj
spațiile sunt parțial compartimentate, dar pot fi adaptate în funcție de destinația viitorului chiriaș
La parter se regăsește un spațiu comercial cu vitrină mare, ideal pentru recepție, showroom sau activități cu acces direct din stradă.
Clădirea poate fi închiriată integral sau pe etaje, în funcție de necesitățile chiriașului. În prezent, întregul imobil este disponibil.
În imediata vecinătate există un teren aflat în proprietate, care va fi amenajat ca parcare dedicată chiriașilor, cu 8 locuri disponibile.
Destinații potrivite:
sediu de companie
firmă de consultanță
clinică medicală
centru servicii
showroom sau activitate comercială la parter
Chirie: 17 €/mp/lună, negociabil
Locuri de parcare: 100 €/lună / loc
Datorită poziției ultracentrale, vizibilității excelente și flexibilității spațiului, această proprietate reprezintă o oportunitate foarte bună pentru companii care își doresc un sediu reprezentativ.
Pentru detalii suplimentare și programarea unei vizionări, vă stăm la dispoziție.