













Klass Estates va propune catre inchiriere spatiu comercial in Corbeanca, fix la soseaua principala.
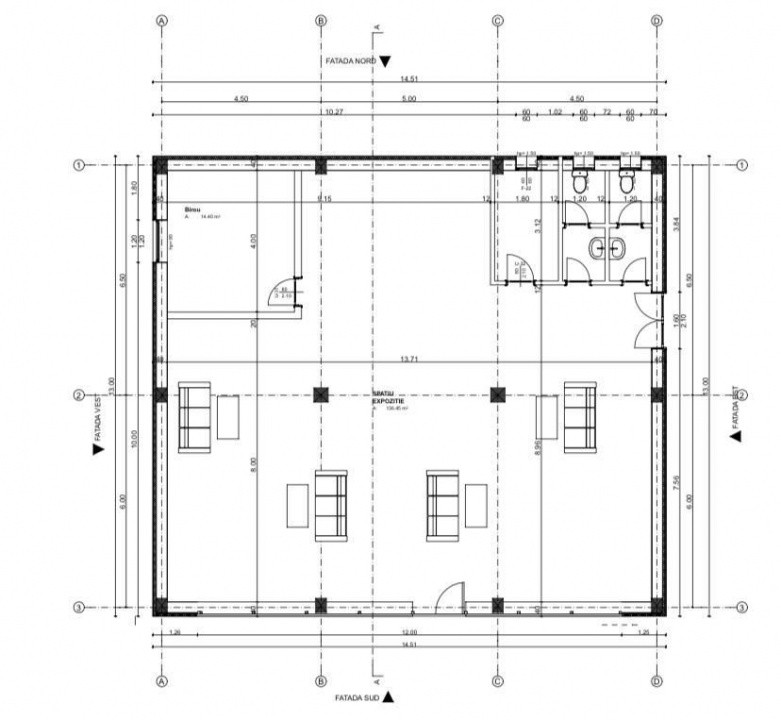
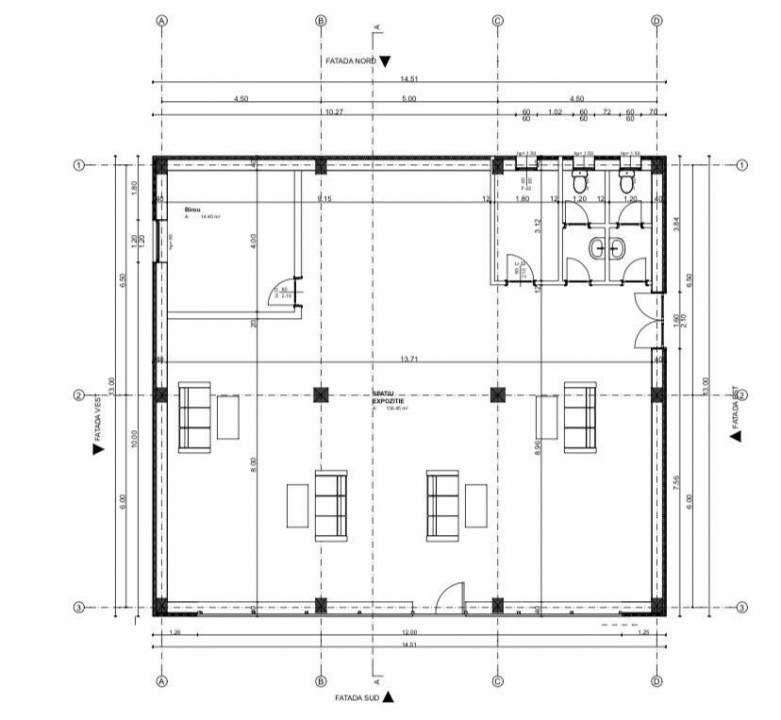
Detalii: suprafata 190mp, parter
incaperi : 2 grupuri santitare, 1 bucatarie, 1 birou, restul open space, vitrina 14m
5 locuri de parcare, 5 aparate de aer conditionat, an constructie 2021
Localizare la soseaua principala, vad bun, pretabil supermarket, showroom, salon, cafenea.
Pentru detalii suplimentare, nu ezitati sa ne contactati!