




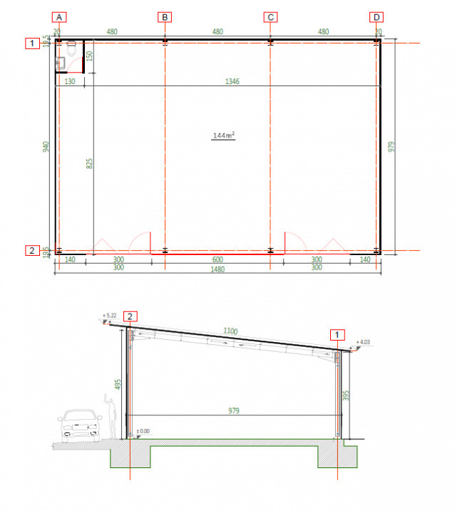
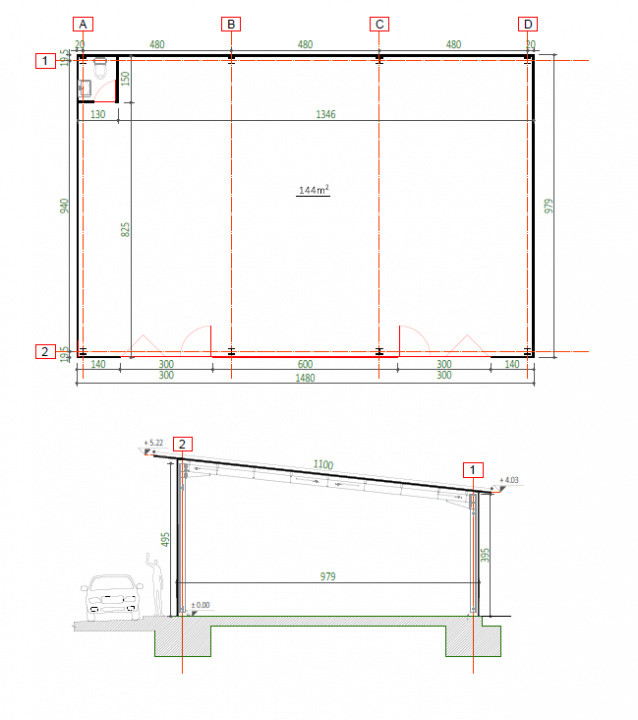
- Suprafata: 144mp
- An Constructie: 2025
- Dimensiuni spatiu ~10 x 15m
- Usi de acces armonice 3 x 3 m
- Inaltime utila 5m / 4m (acoperis o apa)
- Panouri termoizolante
- Grup sanitar
Pretabil pentru:
- Comert
- Productie
- Atelier
- Service Auto
- Depozitare
- Sediu/Punct de lucru
Facilitati:
- Vad comercial
- Energie electrica 220 / 380 V
- Apa + Canalizare
- Grup Sanitar
- Locuri parcare
- Acces usor TIR - autostrada A1
- Contract PF/PJ
- Spatiul se poate modifica dupa necesitati