






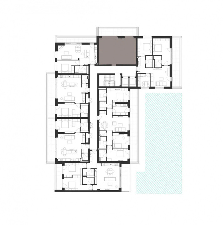
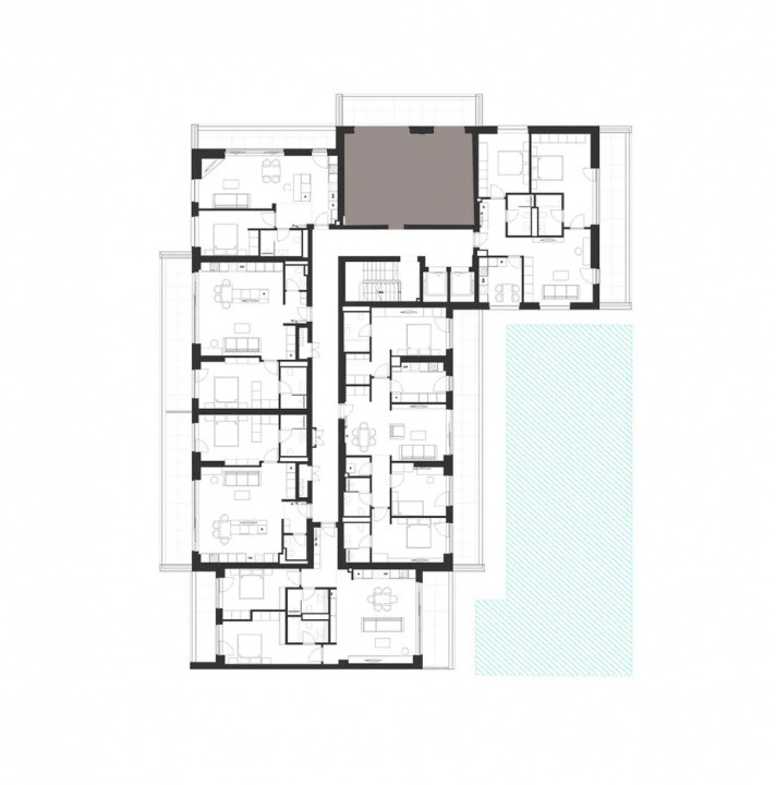
Apartament 2 camere tip studio dublu in Complex rezidential Iresidence , langa Pipera Plaza
Suprafata utila :47mp cu terasa 15mp.
Finalizare septembrie 2026 - martie 2027, structura ridicată, tâmplărie montată.
Vânzare prin cesiune de la persoana fizica, prețul afișat este prețul total al proprietății, prețul cesiunii este 40% iar restul de 60% va trebui achitat la predarea imobilului.
Facilitati in zona: Parc si zona de promenada in complex, Pipera Plaza, Lidl, Sala de sport in Complex si World Class in Pipera Plaza, restaurante, zona birouri
Finisaje:
Fatada ventilata cu izolație din vata minerala, placare ceramica si metalica
Tamplarie din profil aluminiu si sticla tripan Reynaers
Usa acces metalica si interioare tip Filomuro
Incalzire in pardoseala cu termostat pe fiecare camera Rehau
Dus walk-in Geberit, baterii Daniel Rubinetterie
Sistem de climatizare centralizat cu unitate interioară in tavan